One effortless process. All of your ADU dreams.

Trust our expert team to navigate the complexities of building an ADU in San Diego with ease. From understanding the intricate ADU requirements to executing the construction phase seamlessly, we prioritize your needs every step of the way.

line
1 stars stars

FEASIBILITY

Mapping out your vision

  • Choosing an ideal location on your lot with your goals in mind.
  • Conducting a careful feasibility study with every detail considered.
  • Running a full ROI assessment so you get the most out of your investment.
line
2 stars stars

Design

Crafting tailored designs

  • Developing a personalized floor plan tailored to your needs.
  • Selecting stunning finishes for an aesthetic you’ll cherish.
  • Aligning with your expectations through clear 3D visuals.
a drawing of a kitchen and dining room
line
3 stars stars

Permit

Taking permits off your plate

  • Preparing your permits to comply with all local ADU regulations through in-depth research.
  • Managing the local permit submission and review processes for a swift approval.
  • Serving as a liaison between you and the city to ensure you’re informed.
blueprints
line
4 stars stars

Build

Building an ADU you’ll love

  • Carrying out all the steps to build an ADU with quality and precision until the last brick.
  • Working swiftly to compliantly handle all city inspections on your behalf.
  • Executing a flawless one-stop solution that pairs your vision with our quality standards.

Our life-enhancing spaces

From concept to completion, here are just a few of the spaces we’ve transformed.

When it comes to building an ADU in San Diego, we believe in bringing peace of mind to every project. In turn, we handle the entire process in-house while keeping you informed every step of the way. We invite you to explore the dream living spaces we’ve crafted below.

Our Projects

What homeowners are saying

“Better Place Design & Build was the best choice for our San Diego ADU project. As top ADU builders, they understand the big picture and support us at every step.”

Randy, homeowner testimonial for Better Place Design & Build

Randy & Lorreta

Better Place Design & Build Homeowner
Watch the video

our reviews

Google Review

“When I needed an ADU contractor near me, I found Better Place Design & Build. Their team's expertise and dedication made the process smooth and stress-free, and the end result exceeded my expectations.”

Gabby B

Better Place Design & Build Homeowner
Google Review

“I am incredibly pleased with the results! The team was very professional and knowledgeable. They completed the project quickly and efficiently. The materials used were high quality, and the finished product looks great. I would highly recommend Better Place Design & Build to anyone who needs an ADU contractor. They are the best in the business!”

Frank L

Better Place Design & Build Homeowner
Yelp Review

“From start to finish, they demonstrated exceptional professionalism and expertise. The final result exceeded our wildest dreams, and we couldn't be happier with our new ADU!”

Karen L

Better Place Design & Build Homeowner
Yelp Review

“I can see why this business has five stars. If you're looking to build an ADU, I can assure you that you will get someone you can trust.”

Edwin G

Better Place Design & Build Homeowner

Floor Plans

Get inspired

When asked how to build an ADU, our answer is as unique as each property. Whether we’re drafting from scratch or adjusting a floor plan, we don’t believe in one-size-fits-all designs.

See more See more
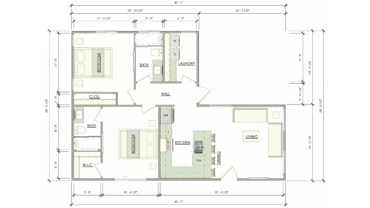
Featured exterior rendering of the Mahogany 1200 sq ft ADU plans showcasing a stylish 3-bedroom, 2-bath design.
Mahogany
  • 1200
  • 3 Bed
  • 2 Bath
Featured image for Pine 900 sq ft ADU plans – 2 bedroom, 2 bathroom layout with modern desert home aesthetic.
Pine
  • 900
  • 2 Bed
  • 2 Bath
Featured outdoor angle of the Maple 800 sq ft ADU, part of adu floor plans 800 sq ft series, set against a wooded backdrop
Maple
  • 800
  • 2 Bed
  • 2 Bath
Aspen
  • 500
  • 1 Bed
  • 1 Bath
Bamboo 400 square foot ADU floor plan with 1 bedroom and 1 bathroom
Bamboo
  • 400
  • 1 Bed
  • 1 Bath
Message us Call Us